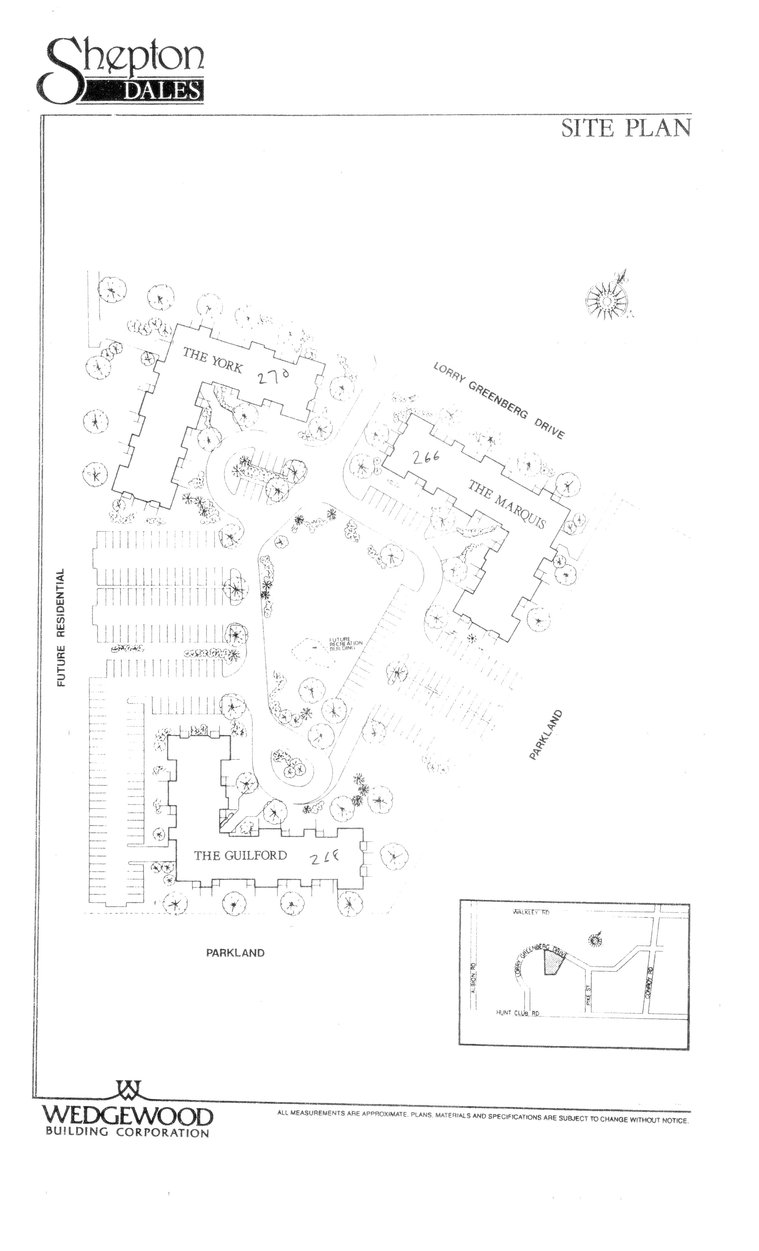
In the late 1980s, Wedgewood Building Corporation started building a collection of five 4-story condominium buildings on Lorry Greenberg Drive. The first phase of this vision came to life as a trio of buildings called Shepton Dales. In the early 1990s, the developments continued with the addition of the Woodhaven and Parkhaven buildings. Unfortunately, while I am lucky enough to have the original plans for Shepton Dales and Woodhaven, I do not have them for Parkhaven.
Ottawa Citizen. March 6, 1987
Ottawa Citizen. September 17, 1987
Ottawa Citizen. March 12, 1988
Ottawa Citizen. May 3, 1988
Ottawa Citizen. April 13, 1989
Ottawa Citizen. February 17, 1990
Ottawa Citizen. March 27, 1990
Ottawa Citizen. November 17, 1990
Ottawa Citizen. April 27, 1991
Ottawa Citizen. June 8, 1991
Ottawa Citizen. June 8, 1991
Ottawa Citizen. October 26, 1991
Ottawa Citizen. October 18, 1992
Ottawa Citizen. March 20, 1993
Ottawa Citizen. June 26, 1993


































Comments
Post a Comment