Skip to main content

Skyline: Part 1

This is the first in a 2-part series on the Skyline neighbourhood. Located between Baseline and Medowlands, just east of Merivale in Nepean, the neighbourhood was almost exclusively built by Minto, and is characterized by a hilly terrain. In this instalment of the series, I focus in on the houses that were built in the area that have a decidedly Mid-Century Modern style. 

The Mid-Century Modern style was put on display in Skyline in a bold way when the 1965 Canadian Home of the Year was constructed by Minto. It appears to be the only one of its kind to be built in Skyline, but there are other plans that Minto built in the area that seem to take inspiration from this house.

Below are excepts from the July 1965 Canadian Homes Magazine in the Ottawa Citizen that highlights the Canadian Home of the Year:















The Ottawa Citizen. July 31, 1965
The Ottawa Citizen. August 20, 1965

The Ottawa Journal. September 18, 1965

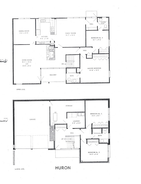
The following plans built by Minto in Skyline have a Mid-Century Modern style that appear to have been inspired by the 1965 Home of the Year.

The Huron plan has a similar "penthouse" living level on the second floor with balcony like the 1965 Home of the Year, but in this case the house is built into a hillside and the back of the second floor is at ground level.
The Ottawa Citizen. December 31, 1966
The Devon won a Canadian Housing Design Council award. The split-level design is designed for land that slopes up at the back. 
The Ottawa Citizen. October 25, 1966
The Ottawa Citizen. January 14, 1967
The Ottawa Citizen. September 10, 1968



The Fairmont is another Canadian Housing Design Council award-winning plan that was built in Skyline. The decorative privacy wall in front is similar to the one at the 1965 Home of the Year. This design was built on lots that slope down at the back.
The Ottawa Citizen. December 17, 1966
The Ottawa Citizen. July 27, 1968
The Ottawa Citizen. August 23, 1968


The CA model is a side-split plan that from the outside has a resemblance to the Brady Bunch house.
Stay tuned for Part 2, where I will look at the more traditionally-inspired plans in Skyline and how these also have a modern twist.



 

Comments

Most viewed posts

Campeau in Alta Vista

One of the biggest builders in Ottawa during the 1950s and 1960s was Campeau Construction, a name still known today, even though the builder is no longer active. Many of the houses in Alta Vista were custom built, but Campeau was one of the first builders to construct tract homes in the area. Approximate locations of areas where Campeau built Beginning in the 1950s Campeau began building houses southwest of Kilborn Avenue and Alta Vista Drive, north of Randall Avenue. At the time, bungalows and one-and-a-half storey houses were most popular. Many of the “Victory Houses” built by Wartime Housing Ltd. for returning veterans after WWII were one-and-a-half stories, and the style soon became very popular for all builders. Below are some of Campeau's one-and-a-half storey plans built in the area: With time, the one-and-a-half storey house became less popular, and bungalows and split-level houses became the norm. An easy way to determine the age...

The small Post-War 1 1/2-Storey House - Part One

 The small Post-War 1  1/2-Storey House The 1  1/2-storey house is common in certain areas of Ottawa built during WWII and the era immediately afterwards. These houses can be found throughout the city, but larger concentrations include the following areas: Carlington, Courtland Park, Carleton Heights, Meadowlands/St. Claire Gardens, Alta Vista, Overbrook, Eastview, Vanier, Elmvale Acres and Queensway Terrace.  The 1  1/2-storey house actually has older roots in European architecture and early North American housing. The style was re-born by Wartime Housing Limited during WWII to fill a need during a housing shortage and were meant to be temporary. The design is economical to build, versus a full 2-storey house, and in some cases the second floor can be left unfinished for future expansion. Here is a link to a NFB short film on the wartime houses:  Wartime Housing   Below are the 3 basic plans Wartime Housing Limited built in communities across Canada -...

Costain in Ottawa - Part One: Blackburn Hamlet (Detached Homes)

Some of my long-time readers may remember that I did a series of posts on Costain a few years ago. For some reason, a few of my older posts have vanished from my blog - for reasons unknown to me. So, I have re-created this post on the builder Costain due to interest from some of my readers. On the positive side, I have been able to get my hot little paws on some new floor plans and marketing material, so there is more material in this post compared to the original (now lost) post! In the mid-1960s the builder Costain (originally from England, but with an impressive global portfolio) came to Ottawa to develop a new hamlet in the eastern greenbelt called Blackburn Hamlet.  Today Blackburn Hamlet is very lush with mature trees and extensive parkland, surrounded by the NCC Greenbelt. The west side of Blackburn Hamlet has 3 neighbourhoods separated by parkland, Westpark, Southpark and Centrepark. The Northpark and Eastpark n...

Modern Mansard - The Neo-Mansard Roof

Throughout the mid-century, the Mansard roof was popular in Ottawa housing design.  First popularised in France during the 17th century, and then revived in the 19th century, the roof style re-appeared in Ottawa during the 1960s. At first the roof was used on historically-inspired houses, but was eventually altered in a variety of ways to have a more modern take on tradition. Campeau was the builder who used the roof the most in the mid-century, but other builders also followed suit. A traditional use of the Mansard roof. Playfair Park North/South, Russell Heights, c. 1965. This plan had a traditional Mansard option as well as 2 Dutch Colonial options with a Gambrel roof. Beacon Hill and South Keys, c. 1967. Here is a great example of a modern take on the Mansard roof. Instead of protruding dormer windows with arched tops, these houses have an inset window and an asymmetrical facade. From the side, the roof actually has more of a Gambrel-style silh...

Campeau in the late 1950s and early 1960s

Below is a collection of floor plans that Campeau built in the late 1950s and early 1960s. I quite like the first plan with its blank front facade to the right of the front door. It gives the house a modern take on the Cape Cod-inspired 1 1/2 story style. I do not believe that many of this design were built, though. I also quite like this design below, with its blank facade and large wall of windows in the Living Room. Too bad my only copy of the plan is cut off at the top.

CMHC house designs from the mid-century

Between 1947 and 1974 the Canada Mortgage and Housing Corporation (CMHC), formerly Central Mortgage and Housing Corporation, published regular floor plan books of small houses suitable to be built in Canada. Blueprints could be ordered for the architect-designed plans, and examples of the built houses can be found throughout Ottawa. There are so many interesting plans that were available through the CMHC, so this is only the first posting with some of my favourites. If you recognise any of these designs that have been built in Ottawa (or elsewhere in Canada), please feel free to share the location with me! I have always been a fan of the butterfly roof! Although there are no front facing windows on the above design, the cedar shake cladding makes for a very interesting facade. The architect was based out of Kanata, and I could easily see this house fitting into the natural landscape of Beaverbrook - although I don't think it was actually built there.  The central atr...

Amberwood Village - Stittsville

Another blog post by request!   Located south of Hazeldean Road east of Stittsville Main Street is a very special "adult-lifestyle" neighbourhood begun in the late 1970s. The original phases of Amberwood Village consist of a series of houses built in clusters along the edges of the Amberwood Golf Course.   The development was originally built by a company called Jaric Developments Ltd. The architect of this original portion of the area was W.G.Mohaupt - who also designed the "courtyard singles" in Hunt Club (see my old post  Favourite Plans South and scroll down to see these designs) - and also used to design houses for Minto.   The clusters of attached houses are grouped on dead-end lanes and units are attached is a variety of arrangements. Some designs have an attached garage, while others have detached garages clustered together with others. The result is a very interesting streetscape with a lot of open spac...

The bungalow staircase

California spearheaded the popularity of the bungalow (or ranch home), in mid-century North America. In California, basements are rare. During WWII and immediately afterward, some Ottawa houses were built without basements to save costs. But, the appeal of having a basement as extra room for storage and expansion space, meant that the basementless house did not last long. Having a basement meant that California-inspired designs had to be adapted to allow room for a staircase down. The placement of the basement stairs in bungalow design is sometimes a challenge. With a two-story house, often the staircase is located in the front hall, but this is not the case with many bungalows. While a staircase up leads to finished rooms on the upper floor, the staircase down to the basement was historically linked to service spaces. Basements in older houses were more utilitarian, so there was no need to have the basement stairs on display like the stairs to the upper floors. A stair...

California Modern in Ottawa

During the mid-century era, California became the epicentre of modern design. From the architect-designed case-study houses, to the mundane tract house, all eyes were on California. In Canada, books and periodicals on architecture filled with Californian design would have sparked the imagination of Architects and designers. W hen one thinks of Mid-Century Modern (MCM) California tract housing, the name ‘Eichler’ often comes to mind. Perhaps one of the most famous MCM tract builders, Joseph Eichler, defined MCM design in the United States. His widely-published designs even captured the imagination of Canadians. Any designer/architect in the know would have seen an Eichler plan. In Ottawa, there are a few examples of houses built in the 1960s with floor plans that could have been influenced by those being built by Eichler. The most famous Eichler-built designs are those with an open-air atrium at the centre. One of the floor plans built by Teron in Beaverbrook during the...

MCMC - Mid-Century Modern Condos

Do you love MCM design, but are looking for a condominium apartment to call home? Ottawa has a good selection of MCM buildings where your Eames chair will feel at home. While some may find the plain exteriors of many MCM condos too severe, they usually have very spacious units inside - especially compare to the tiny condos built today. The simplicity of some of the plans may seem boring, but upon closer inspection, the well-proportioned rooms and abundance of natural light is quite appealing. MCM condo apartments were built in the later half of the period, as the first ever high-rise condo building in Canada was built in 1967. The Horizon House is located in Ottawa, and was built by Minto in Parkwood Hills. There were buildings built earlier in the mid-century, but they are rental apartment buildings. This particular posting will focus only on condo buildings. Horizon House - located at Meadowlands Drive and Chesterton Drive in Parkwood Hills. Built in t...